Освободите себя от хлопот и волнений, связанных с непростым вопросом выбора правильных решений по инженерным системам для вашего дома.

Проект отопления учитывает всё оборудование и материалы до каждого отдельного фитинга. Вы не оплатите ничего лишнего.
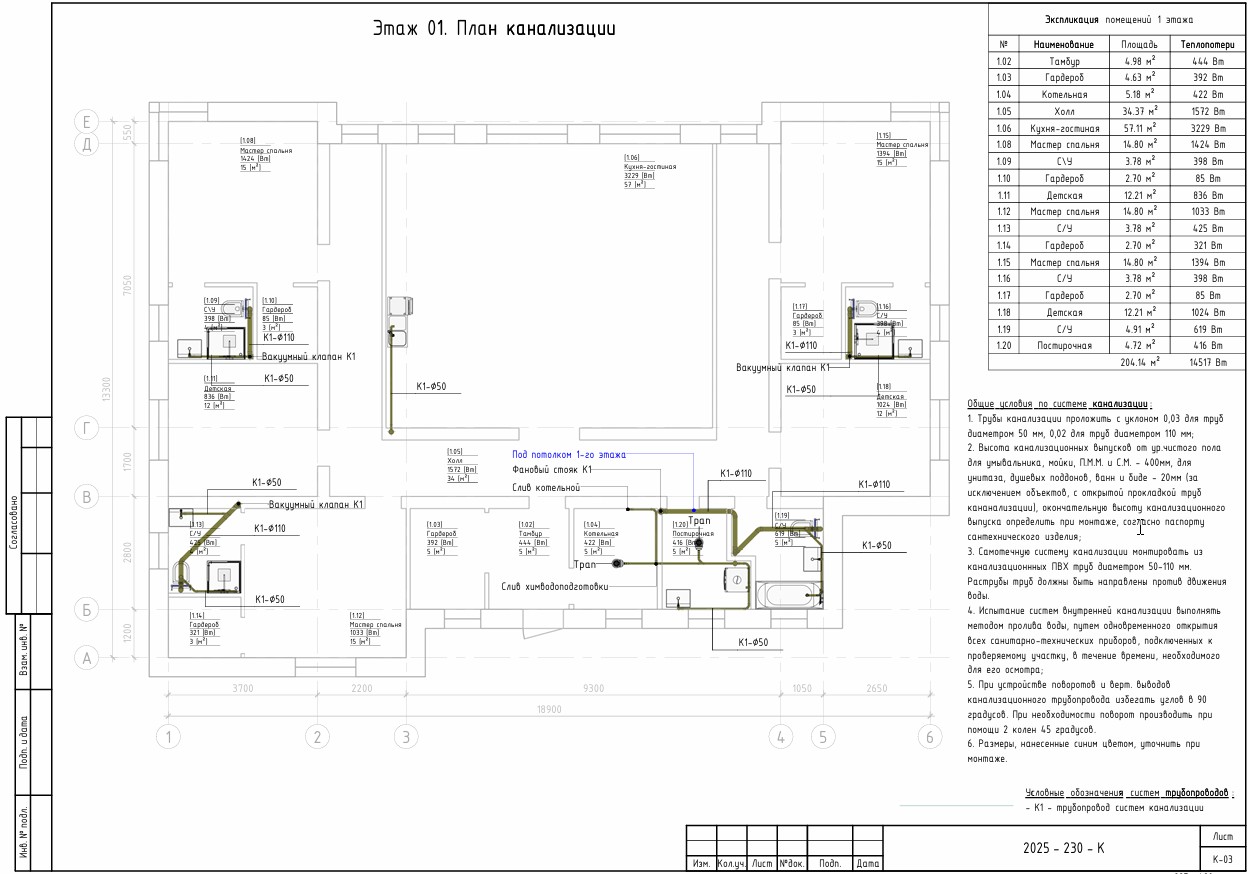
Расчёт теплопотерь и гидравлики для вашего дома позволит подобрать правильные решения и отопление будет решать свои задачи.
Оптимальные решения при проектировании обеспечат вам рациональный расход на постоянно дорожающие энергоносители.
Просто выбирайте один из тарифов от "Умно & Точно" или сконфигурируйте свои пожелания самостоятельно.
1
Делаем интегральный
расчёт теплопотерь
Главная задача, которая решается при проектировании. Каждый дом индивидуален, даже если он сделан по готовому проекту. У него есть свои особенности, есть слабые и сильные стороны.
У кого-то встроены большие витражи, окна в пол, дающие большие теплопотерии. Кровля может быть утеплена лучше или хуже. Нюансов в этом вопросе великое множество и все они влияют на теплопотери.
2
Подбираем котёл и отопительные приборы
Посчитали теплопотери – выбираем котел, который будет греть весь дом. Подбираем приборы отопления для каждого помещения – радиаторы, конвекторы, тёплые полы.
3
Рассчитываем гидравлику всей системы
Определились с приборами – переходим к расчёту всей гидравлической системы. Определяем диаметры труб, переходы-повороты, фитинги, насосы.
4
Проектируем
котельную
Ну и как вершина и сердце всей системы – проектируем котельную: распределительные узлы, обвязка всего и вся, автоматика и прочее.
На выходе получается настоящий проект в виде многостраничного документа, содержащий исчерпывающую информацию о виде, расположении и полной спецификации оборудования и материалов в привязке к вашему объекту.
1
Скорее всего, отопление не будет
работать правильно
Практика показывает, что до половины наших заказов - это переделка или ремонт системы отопления на тех объектах, где делали на глазок. Чем грозит такая процедура долго объяснять не надо: дополнительные затраты и немалые, испорченные стены и полы и многие другие "прелести". Это для тех, кто всё же решился сделать по уму.
Многие не решаются на переделку и эксплуатируют отопительную систему, которая плохо и неравномерно греет или же потребляет энергию (электричество или газ) избыточно. Как говориться, или мёрзнем или переплачиваем.
Причина же проста: ключевое оборудование подбиралось без учёта реальных теплопотерь и тонкостей гидравлического решения конкретно вашего объекта!
2
Скорее всего вы переплатите явно или косвенно за оборудование и материалы
Так как не посчитаны теплопотери и гидравлика, то по оборудованию вас могут ожидать следующие "радости":
а) Радиаторы приобретаются с неоправданным запасом по мощности = переплата.
б) Насосы так же подбираются с избытком как по количеству, так и по производительности = переплата.
Так как спецификация на материалы формируется приблизительно, то вас ожидает два варианта:
а) Монтажники закупятся трубами, фитингами и прочими расходниками за ваш счёт "с запасом", который останется у вас в виде неликвида или же исчезнет в виде бонуса им же.
б) Закупка будет происходит спонтанно частями по мере монтажа, сильно усложняя логистику процесса, удлиняя сроки и конечную стоимость. Вы не сможете контролировать этот процесс полноценно.
Его стоимость с лихвой компенсируется за счёт:
а) Оптимизации стоимости оборудования и материалов при монтаже.
б) Гарантии от последующих непредвиденных затрат на переделку или ремонт системы.
с) Экономии на расходе газа или электричества за счёт правильной калибровки всей системы.
Отопление - не одноразовый продукт, который легко сменить. Это - инвестиция в ваше комфортное будущее.
Подберите наиболее подходящий для себя вариант проектирования инженерных систем
ПРОЕКТ ОТОПЛЕНИЯ
от 310
руб / кв. метр
Включает:
Радиаторное отопление
Тёплые полы
Котельная
Подробный документ в PDF
КОМПЛЕКСНЫЙ ПРОЕКТ
от 350
руб / кв. метр
Включает:
Радиаторное отопление
Тёплые полы
Котельная
Водоснабжение
Канализация
Подробный документ в PDF
1 из 9
Укажите общую площадь отапливаемых помещений дома:
Планируется ли тёплый водяной пол?
2 из 9
Если вам не нужен теплый пол, просто нажмите "далее". Тут скрытые вопросы для тех, кому теплый пол нужен :)
Укажите площадь тёплого пола (должна быть меньше общей площади):
Планируется ли в помещениях с теплым полом установка радиаторного отопления? (Когда теплый пол для комфорта, а радиаторы – основное отопление):
Нужна ли автоматика для теплого пола (сервоприводы, комнатные термостаты)?:
3 из 9
Выберите марку радиаторов отопления (перечислены популярные варианты; в реальности могут быть применены любые, доступные на рынке):
4 из 9
Нужна ли установка термоголовок на радиаторы:
Выберите основной источник теплоэнергии:
Выберите тип котла:
5 из 9
Выберите производителя модель котла (перечислены популярные варианты; в реальности могут быть применены любые, доступные на рынке:
6 из 9
Нужен дополнительный резервный электрокотел:
Выберите материал трубопроводов для радиаторного отопления (открытая – вдоль стен, коллекторная – скрытая разводка отопления):
7 из 9
ГВС – установка бойлера косвенного нагрева:
Выберите материал вашего дома:
Как скоро вам нужен монтаж отопления:
8 из 9
Загрузите чертежи вашего дома, архитектурный или дизайн-проект (если есть) и расчет будет в несколько раз точнее:
Загрузите готовый проект отопления (если есть) и мы составим по нему смету оборудования и работ:
Если файлы слишком большие, скиньте нам ссылку на них (например, на Яндекс.Диск):
Либо вы можете просто отправить чертежи нам на почту:: info@umno-i-tochno.ru
9 из 9
9 из 9
Проектирование систем отопления, водоснабжения и канализации для коттеджа




Всё максимально прозрачно для клиента
Все документы (сметы, отчёты) онлайн
Видео и фотофиксация всех этапов работ
Правильные, а не удобные решения
Наш подход - это комбинация опыта, мастерства и инновационных технологий. Мы постоянно следим за новыми тенденциями и развитием отрасли, чтобы предлагать вам самые современные и эффективные решения.
Всегда прозрачный процесс работы, где вы в любой момент можете узнать о ходе выполнения работ и получить все необходимые консультации. Мы ценим ваше время и стремимся к максимальному уровню удовлетворенности наших клиентов.
Наш подход - это комбинация опыта, мастерства и инновационных технологий. Мы постоянно следим за новыми тенденциями и развитием отрасли, чтобы предлагать вам самые современные и эффективные решения.
Всегда прозрачный процесс работы, где вы в любой момент можете узнать о ходе выполнения работ и получить все необходимые консультации. Мы ценим ваше время и стремимся к максимальному уровню удовлетворенности наших клиентов.

Александр, инженер
Проектирование, сметы и надзор за строительством

Николай, менеджер
Консультирование клиентов и поддержка проектов

Сергей, менеджер
Консультирование клиентов и поддержка проектов

Александр, инженер
Проектирование, формирование смет и контроль за строительством

Николай, менеджер
Консультирование клиентов и поддержка проектов

Сергей, менеджер
Консультирование клиентов и поддержка проектов
Информация на сайте носит исключительно информационный характер и не является публичной офертой, определяемой положениями статьи 437 гражданского кодекса РФ.